Properties for Sale
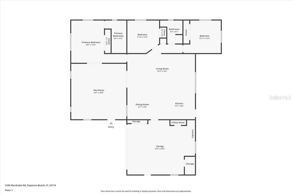
1436 MARDRAKE ROADDAYTONA BEACH, FL 32114




Mortgage Calculator
Monthly Payment (Est.)
$1,296Welcome to this beautifully remodeled (2023) 3-bedroom, 2-bathroom home nestled in one of Daytona Beach's most desirable areas. Upgrades include kitchen cabinets, black stainless steel appliances, bathrooms, light fixtures, smart mirrors and thermostat. Featuring a sleek, modern design throughout, this home offers comfort, functionality, and style in every space.The open-concept layout flows seamlessly, creating the perfect setting for both relaxing and entertaining. Enjoy peace of mind with a roof that's only 6 years old and a new water heater installed in 2024. The updated interior boasts clean finishes, modern fixtures, and thoughtful touches that truly make this home move-in ready.Step outside to a spacious yard with room to make it your own — ideal for outdoor gatherings, gardening, or simply soaking up the Florida sunshine.
| a month ago | Listing updated with changes from the MLS® | |
| a month ago | Price changed to $284,000 | |
| 2 months ago | Listing first seen on site |
Listing information is provided by Participants of the Stellar MLS. IDX information is provided exclusively for personal, non-commercial use, and may not be used for any purpose other than to identify prospective properties consumers may be interested in purchasing. Information is deemed reliable but not guaranteed. Properties displayed may be listed or sold by various participants in the MLS Copyright 2025, Stellar MLS.
Last checked: 2025-10-28 10:24 AM EDT
Did you know? You can invite friends and family to your search. They can join your search, rate and discuss listings with you.